Popis nehnuteľnosti
Kancelária Directreal Optimal
MaklérRichard Semanco
ID:276677
Popis: Realitná kancelária Directreal Optimal ponúka 5 samostatných dvojapartmánov a 1 trojapartmán. Ponúka sa to ako nebytový priestor. Je to super investičná príležitosť, tak ju nezmeškaj.
Nebytový charakter priestoru poskytuje budúcemu vlastníkovi širokú flexibilitu využitia - od apartmánového prenájmu, cez služby a adimistratívu, až po moderné štúdio alebo investičnú nehnuteľnosť s potenciálom stabilného výnosu.
Každý dvojapartmán pozostáva z dvoch plnohodnotných apartmánových jednotiek, ktoré je možné využívať samostatne napr. na krátkodobé ubytovanie (v súlade s účelom stavby a platnou legislatívou),
alebo stavebne spojiť do jedného väčšieho apartmánu podľa investičnej stratégie.
To isté sa dá spraviť aj s trojapartmánom.
V Ružinove na Trnavskej ceste, priamo pri Klientskom centre, pár krokov od nového fitka NIDO, Kauflandu, YEME, Kuchajdy... – miesto, kde je celý deň pohyb, energia a prirodzený dopyt.
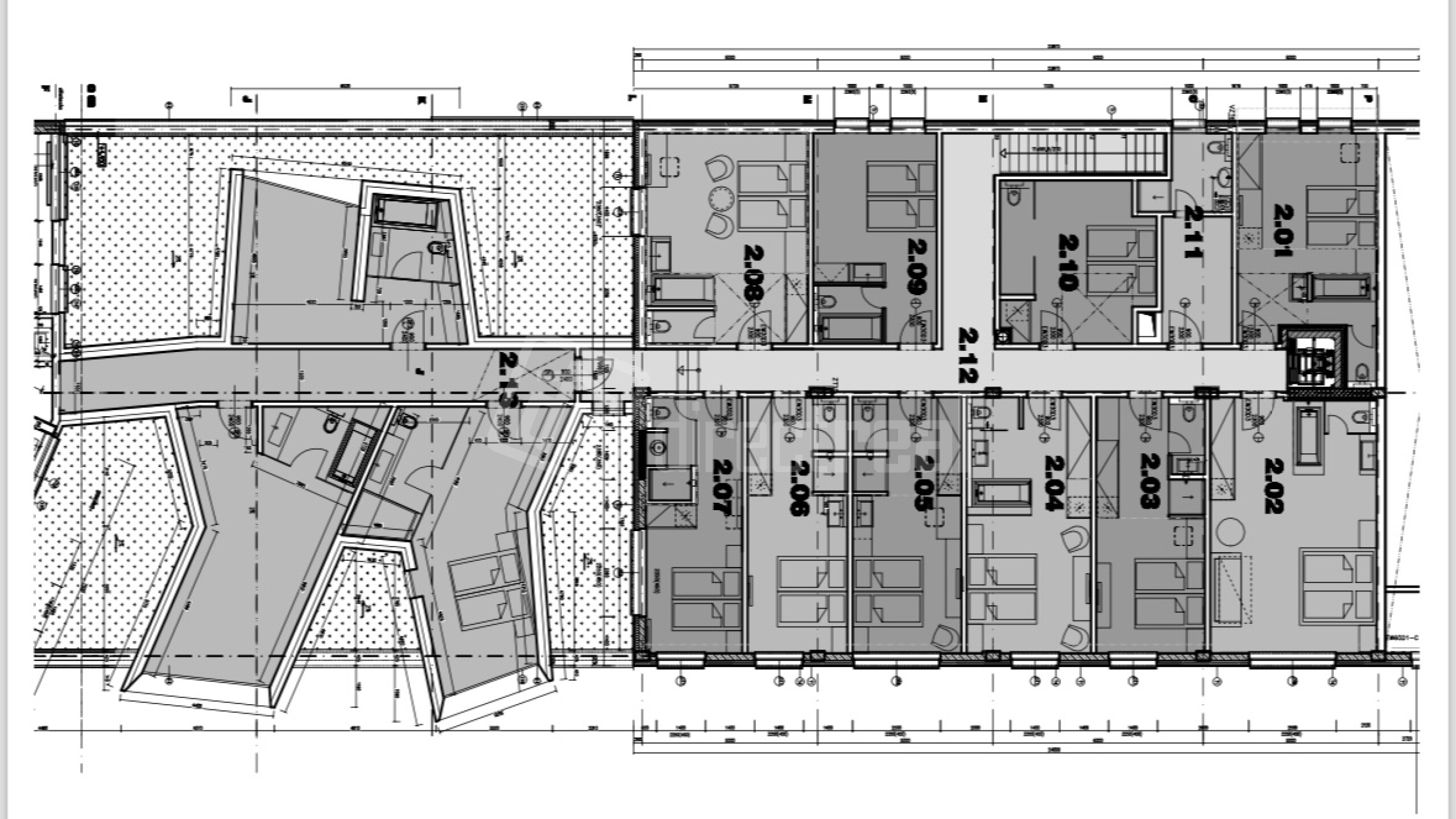
Celkom ide o 5 rôznych dvojapartmánov. Na konci máte pôdorys projektu:
1. Dvojapartmán = (2.01+2.10+2.11)
Spolu 47,3 m2
2. Dvojapartmán = (2.08+2.09)
Spolu 47,3 m2
3. Dvojapartmán = (2.02+2.03)
Spolu 56,1 m2
4. Dvojapartmán = (2.04+2.05)
Spolu 47,3 m2
5. Dvojapartmán = (2.06+2.07)
Spolu 39,5 m2
1. Trojapartmán = (2.13)
Spolu 107,5 m2
V súčasnosti nemáme k dispozícii viac fotografií, keďže celý objekt je aktuálne plne obsadený hosťami.
Každý apartmán má individuálnu dispozíciu a charakter, preto je najlepším spôsobom, ako ich spoznať, osobná obhliadka.
Ku každému apartmánu je možné dokúpiť samostatné parkovacie miesto za cenu 29 000 €.
Každý apartmán bude mať vlastný merač elektriny a vody.
Cenové podmienky jednotlivých apartmánov poskytujem pri telefonickom kontakte.
Pre viac informácií a dohodnutie obhliadky ma neváhajte kontaktovať – rád vám projekt predstavím osobne.
Tel. číslo: +421 919 287 090
Podlahová plocha m2: 50
Loggia: Nie
Výťah: Áno 1x
Stav: Po čiastočnej rekonštrukcii
Poschodie: 1
Konštrukcia bytu: Zmiešaná
Možnosť kúpy na úver: Áno
Zálohový predpis / mesiac EUR: 100
Okná: Plastové
Kuchynská linka: Zánovná
Kúpelňa: Zánovná
WC: Zánovné
Podlahy: Drevené parkety
Svetové strany: SV
Zateplený dom: Áno
Forma vlastníctva: Osobné
Garáž: Áno
Prechodné izby: Nie
Pivnica: Nie
Služby k nehnuteľnosti
Realitné služby
Referencie klientov
Spokojní klienti
Časté otázky pri kúpe nehnuteľnosti
Netipujte, neoplatí sa to. My vieme, akú má vaša nehnuteľnosť skutočnú cenu.
Na našom rodinnom magazíne pohovka nájdete zaujímavé články zo sveta realít, ale aj z rodinného života.
Výpočítajte si splátku hypotekárného úveru
Výpočítajte si hypoteku
Mesačná splátka:
700 €
Výška úroku:
30 000 €
Vlastné zdroje:
75 000 €
Požičaná suma:
100 000 €







