Popis nehnuteľnosti
Kancelária Directreal for Life
MaklérNora Jarinová
ID:276823
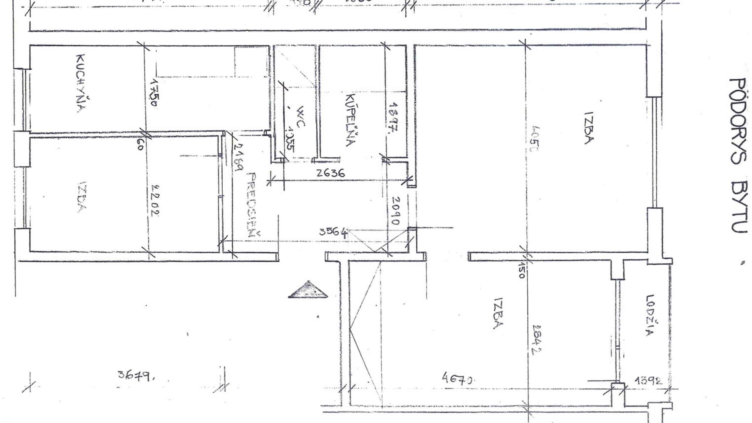
Popis: Na domovskej stránke DirectReal pod ID:276823 nájdete 34 fotografií tejto nehnuteľnosti vrátane jej pôdorysu.
Realitná kancelária Directreal for Life ponúka na predaj pekný kompletne rekonštruovaný 3-izb. byt 64,75 m2 s klimatizáciou a balkónom, 15 min. autom a 12 min. vlakom od Nových Zámkov.
Byt má tieto miestnosti: 3 izby, kuchyňu, chodbu, kúpeľňu a samostatnú toaletu. Z izby sa vchádza na balkón.
V r. 2020 bol byt kompletne rekonštruovaný. V byte sú nové: plastové okná s vnútornými žalúziami, klimatizácia, interiérové dvere + zárubne, vchodové bezpečnostné dvere do bytu, elektroinštalácia + zásuvky a vypínače, vodoinštalačné a kanalizačné rozvody, sanita v kúpeľni a na toalete, znížené stropy v jednej izbe a v kúpeľni. Podlahy sú plávajúce alebo s keramickou dlažbou a to podľa typu a charakteru miestnosti. V cene bytu sú zahrnuté: v kuchyni kuchynská linka (rok 2021) s elektrickým sporákom a sklokeramickou varnou doskou, umývačkou riadu, na chodbe šatníková skriňa ROLLDOOR, v kúpeľni nábytok. Na balkóne sú nainštalované vonkajšie plastové rolety.
K bytu patria spoločné miestnosti a samostatný priestor v pivnici.
Byt po kompletnej rekonštrukcii je pripravený na okamžité nasťahovanie. V okolí obytného domu sa nachádzajú rôzne obchody a služby.
V prípade akýchkoľvek otázok alebo dohodnutia OBHLIADKY ma kontaktujte na t.č. 0905 312 657...
Ak chcete realizovať kúpu nehnuteľnosti na úver, rada Vám poradím aj v tomto smere...
Podlahová plocha m2: 64.75
Loggia: Áno 1x
Výťah: Áno 1x
Stav: Po kompletnej rekonštrukcii
Poschodie: 00/00
Konštrukcia bytu: Panel
Možnosť kúpy na úver: Áno
Zálohový predpis / mesiac EUR: 0
Okná: Plastové
Kuchynská linka: Zánovná
Spotrebiče: Elektrický sporák,Elektrická varná doska,Umývačka riadu
Kúpelňa: Po rekonštrukcii
WC: Po rekonštrukcii
Podlahy: Plávajúca podlaha,Dlažba
Bezpečnostné dvere: Áno
Svetové strany: V,Z
Kúrenie: Ústredné + merače tepla
Zdroj tepla: Teplo z kotolne
Zateplený dom: Áno
Forma vlastníctva: Osobné
Garáž: Nie
Prechodné izby: Áno
Pivnica: Áno
Výhody nehnuteľnosti
Služby k nehnuteľnosti
Realitné služby
- Fotodokumentácia nehnuteľnosti
- Kontrola listu vlastníctva
- Vypracovanie cenovej mapy
- Označenie nehnuteľnosti reklamným bannerom
- Prezentovanie na stránke www.directreal.sk
- Prezentácia nehnuteľnosti na vybraných realitných serveroch
- Pravidelné informovanie o stave, záujme o nehnuteľnosť
Referencie klientov
Spokojní klienti
Časté otázky pri kúpe nehnuteľnosti
Podobné nehnuteľnosti
Netipujte, neoplatí sa to. My vieme, akú má vaša nehnuteľnosť skutočnú cenu.
Na našom rodinnom magazíne pohovka nájdete zaujímavé články zo sveta realít, ale aj z rodinného života.
Výpočítajte si splátku hypotekárného úveru
Výpočítajte si hypoteku
Mesačná splátka:
700 €
Výška úroku:
30 000 €
Vlastné zdroje:
75 000 €
Požičaná suma:
100 000 €

























































