Popis nehnuteľnosti
Kancelária Directreal Pro
MaklérKatarína Matušková
ID:276420
Popis: Vianočná AKCIA! Dávame do pozornosti zľavu na 2 izbové byty. Verím že oceníte 10 000€ zníženie ceny. Pozor však, táto ponuka platí len do konca roka 2025 a nebudeme ju opakovať. Preto využite túto jedinečnú možnosť . Rezervujte si svoj nový byt už teraz, urobte si svoj Vianočný darček !
Novostavba bytového domu Kruháč , Vám prináša možnosť komfortného bývania v moderne navrhnutých bytoch s najlepšou polohou v centre obce Lysá pod Makytou.
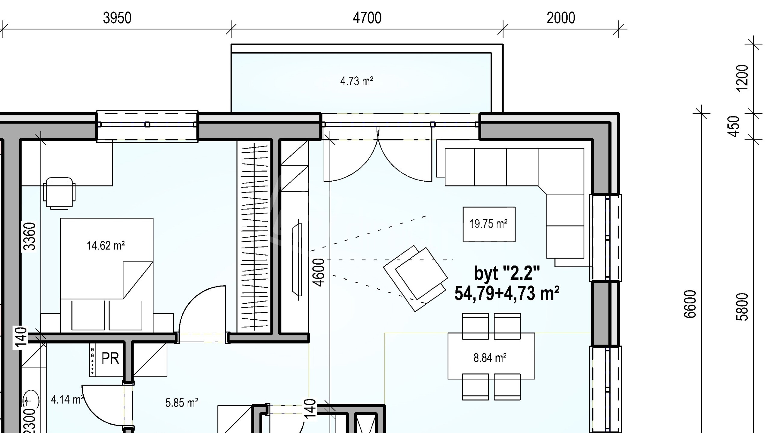
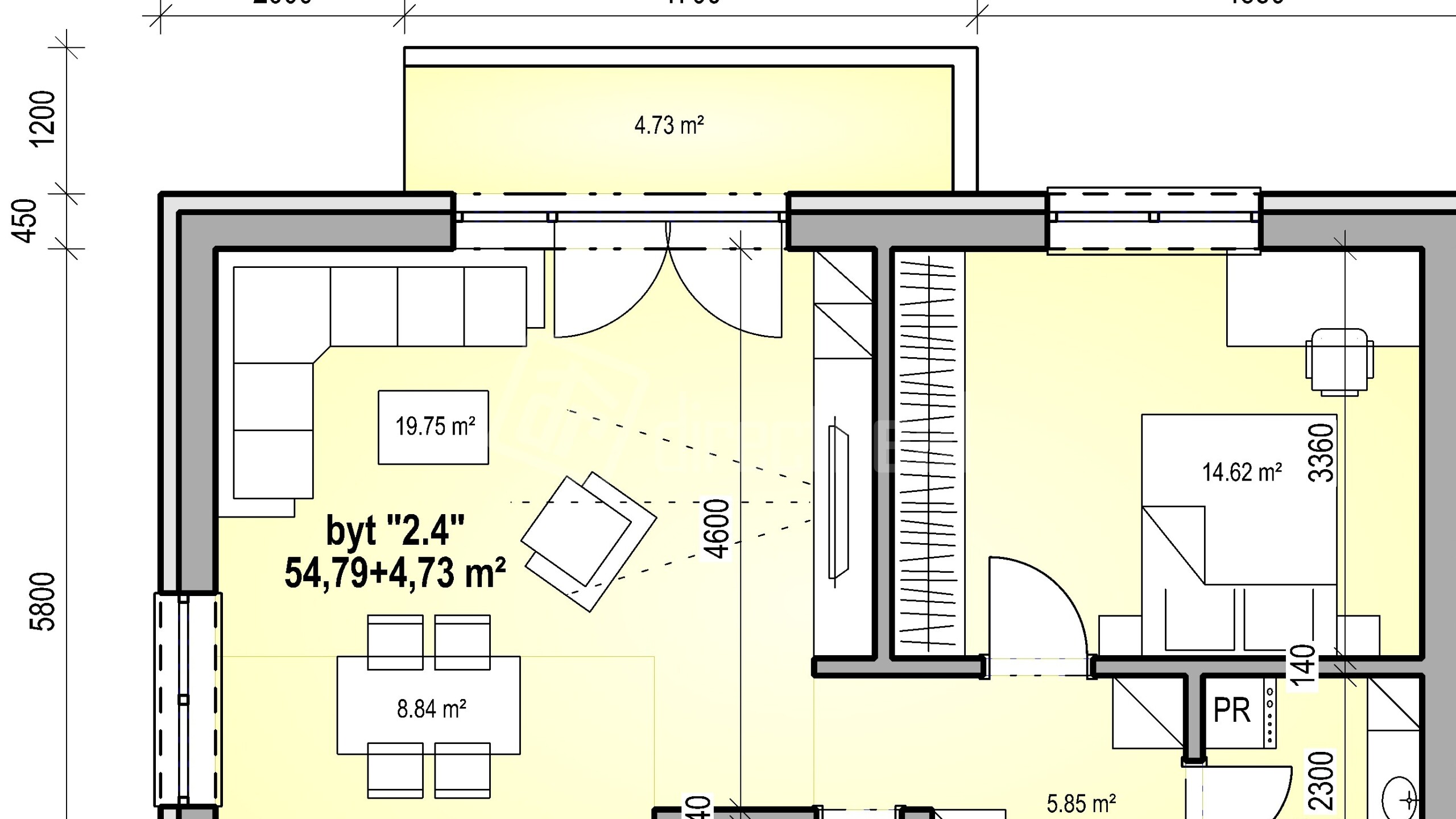
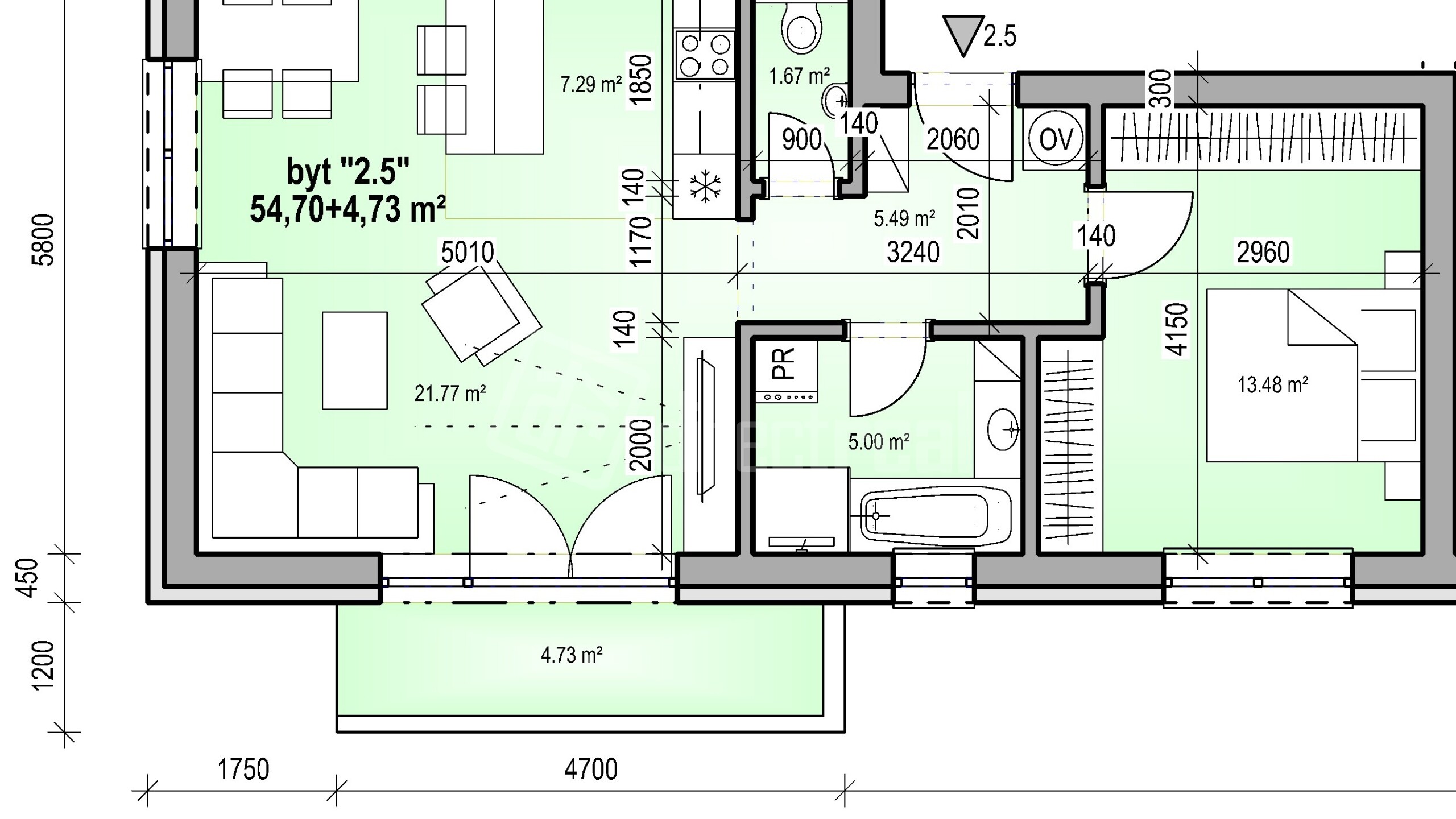
2 izbový byt má výmeru necelých 55m2 plus balkón o výmere 4,73m2
Bytový dom je tvorený viac menej týmito 2 izbovými bytmi . Na 2 a 3 nadzemnom podlaží je po 4 byty. Vyberte si z týchto 8 bytov , aj podľa orientácie , aká Vám bude vyhovovať. Ich dispozícia je veľmi dobre riešená . Vstupná chodba oddeľuje dennú a nočnú časť. Spálňa má 13,5 m2 . Na chodbe je samostatné wc s malým umývadlom. Kúpeľňa je predpokladaná s vaňou. Obývacia miestnosť je jeden veľký otvorený priestor ,spojený s kuchyňou a s výstupom na balkón. Táto miestnosť má úctyhodných 20m2. Naše video Vám priblíži dispozíciu bytu a vizualizácie pre inšpiráciu využitia celého priestoru. Neváhajte , takto môže vyzerať Váš budúci domov. Rezervujte si už dnes jeden z nich.
Bytový dom bude postavený z tehly so zateplením 15 cm polystyrén. Strecha bude sedlová pokrytá betónovou škridlou , zateplenie strechy 40 cm minerálnej vlny. Strešné okná ROTO Germany. Samozrejmosťou bude príprava na klimatizáciu. Vykurovanie je elektrické podlahové, v kúpeľni rebrinový radiátor.
Byty budú predávané v štandarde . Navrhnuté sú kvalitné materiály v prírodných teplých farbách. Prípadne je na výber z dvoch druhov. Štandard bude obsahovať: vchodové bezpečnostné dvere, interiérové dvere vrátane obložkových zárubní, podlahy, sanita, obklady , WC systém so zabudovanou nádržkou Geberit, vaňa/sprchový kút, umývadlo, svetlo. Prípravy na kuchyne: el. rozvody 230 V, prívod studenej a teplej vody, vývod odpadu, prívod na sporák 400 V, všetky byty majú prípravu na digestor so spätnou klapkou. Internetové prípojky.
Ak chcete mať zabezpečené vždy voľné parkovacie miesto je možné s bytom zakúpiť aj parkovacie miesto priamo pri bytovom dome v cene 7.000.- Eur.
V prízemí bude prevádzka reštaurácie, ktorá Vás odbremení od starostí s varením.
Lokalita je atraktívna aj tým že v tesnej blízkosti je všetko čo potrebujete.
Pri Kruháči je aj zástavka autobusu , obecný úrad, pohostinstvo, potraviny, kultúrny dom. V obci nájdete aj poštu, materskú školu a základnú školu do 9 ročníka. V okolí je veľa možností na turistiku, cyklistiku, oddych a relax v neďalekej prírode. Do mesta Púchov je to 15 km, cesta autom trvá necelých 15 min.
Výstavba sa už začala a predpokladaný termín dokončenia je jar/2027. Predpokladaný termín hrubej stavby pod strechou je na jar marec 2026.
Neváhajte sa bližšie informovať , radi Vám odpovieme na Vaše ďalšie otázky na tel. č. +421 904 545 101
Podlahová plocha m2: 55
Loggia: Áno 1x
Výťah: Nie
Stav: Novostavba
Poschodie: 2/4, 3/4
Konštrukcia bytu: Tehla
Možnosť kúpy na úver: Áno
Zálohový predpis / mesiac EUR: 80
Okná: Plastové
Kuchynská linka: Nie
Kúpelňa: Nová
WC: Nové
Podlahy: Plávajúca podlaha,Dlažba
Bezpečnostné dvere: Áno
Svetové strany: SV,JZ
Kúrenie: Podlahové
Zdroj tepla: El.vykurovanie
Zateplený dom: Áno
Forma vlastníctva: Firemné
Služby k nehnuteľnosti
Realitné služby
Referencie klientov
Spokojní klienti
Časté otázky pri kúpe nehnuteľnosti
Podobné nehnuteľnosti
Netipujte, neoplatí sa to. My vieme, akú má vaša nehnuteľnosť skutočnú cenu.
Na našom rodinnom magazíne pohovka nájdete zaujímavé články zo sveta realít, ale aj z rodinného života.
Výpočítajte si splátku hypotekárného úveru
Výpočítajte si hypoteku
Mesačná splátka:
700 €
Výška úroku:
30 000 €
Vlastné zdroje:
75 000 €
Požičaná suma:
100 000 €






























